Skip to main content

Parts for BendPak HD-9

Above Ground / Surface Mount 4-Post Lifts – BendPak Lift – HD-9

SVI is the #1 Source for repair parts for BendPak Lifts. Whether you need cables, sheaves, cable / sheave revamp kits, slider blocks, power units, height extensions and pads, or another part for your 4-post BendPak lift, SVI has what you need. We offer excellent pricing and in-stock items usually ship out same day.

Looking for a specific model breakdown or part? Contact SVI today!

Add to
Quote
Add to
Order
Item
SVI Part #
OEM #
Description
QTY
 
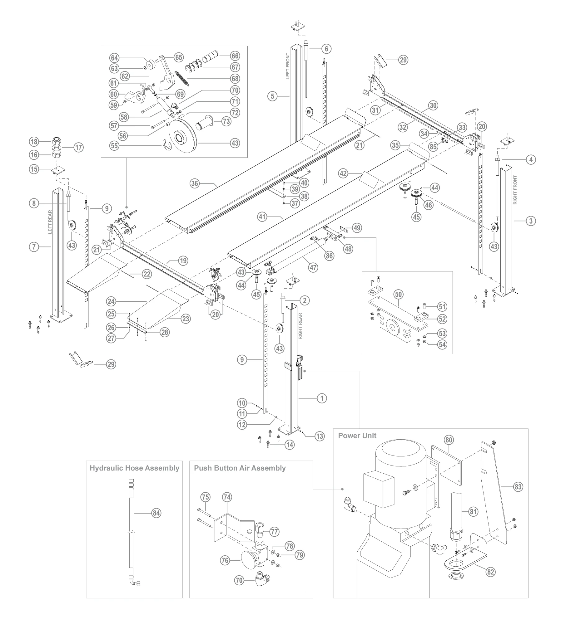
1
5601136
RR Column Assembly (Power)
1

2
5595457
Cable, Lifting RR 23' 3-1/4"
1

3
5601135
RF Column Assembly
1

4
5595474
Cable, Lifting RF 9' 8-1/2"
1

5
5601135
LF Column Assembly
1

6
5595906
Cable, Lifting LF 15' 1/4"
1

7
5601135
LR Column Assembly
1

8
5595916
Cable, Lifting LR 28' 6-3/4"
1

9
5600920
Lock Ladder
4

10
5530167
Hex Bolt, M10 x 1.5 x 45mm
4

11
5545341
Flat Washer, M10 x 20 dia
8

12
5746381
Spacer, Safety Ladder, 17.5mm Lg
4

13
5535013
Nut M10 x 1.5 NL
4

14
5530456
Anchor Bolt 3/4" x 4-3/4"
16

15
5600405
Column Cover
4

16
5535021
Nut, M16 x 2.0
4

17
5545025
Flat Washer, M16 x 30mm
4

18
5535008
Nut, M16 x 2 NL
4

19
5601822
Crossbeam, Rear
1

20
5716005
Polyethylene Slider Block
16

21
5755157
Crossbeam Spacer, 50mm x 16 x 10
2

22
5745014
Approach Ramp Pin
4

23
5215193
Approach Ramp Assembly
2

24
5600891
Approach Ramp Weldment
1

25
5530093
Hex Bolt, M6 x 1.0 x 20mm
3

26
5545005
Flat Washer, M6 x 12mm
3

27
5535357
Roller Nut, M6 x 1.0 NL
3

28
5716054
Approach Ramp Edge Guard
1

29
5716630
Crossbeam Cover
4

30
5601821
Crossbeam, Front
1

31
5755018
Air Line Tubing, 11-5/8” x 13.5 x 9.5
2

32
5755020
Air Line Tubing, 36-1/8” x 13.5 x 9.5
2

33
5755021
Air Line Tubing, 7-1/4" x 13.5 x 9.5
2

34
5755022
Air Line Tubing, 4-3/4" x 13.5 x 9.5
4

35
5600890
Wheel Stop Plate
2

36
5600203
Runway, Left Side
1

37
5535012
Nut, M12 x 1.75 NL
2

38
5735663
Runway Strap, Left Side
1

39
5545347
Flat Washer, M12
2

40
5530375
Hex Bolt, M12 x 1.75 x 25 CL12.9
2

41
5215190
Runway, Right Side (Power Side)
1

42
5700072
Wheel Chock
2

43
5215122
Cable Sheave, Single
6

44
5530776
Socket Head Cap Screw M8 x 1.25 x 20
4

45
5600900
Cable Sheave Pin
4

46
5215123
Twin Sheave Assembly
2

47
5502165
Hydraulic Cylinder, 3.0" x 70"
1

48
5215820
Cylinder Flange Arm Assembly
1

49
5731309
Cable Retainer Plate
1

50
5601303
Cylinder Flange Arm
1

51
5530244
Full Head Phillips Screw M6 x 1.0 x 20
4

52
5715031
Cylinder Cable Block Arm Slide
2

53
5545005
Flat Washer, M6 x 12mm
4

54
5535357
Nut, M6 x 1.0 NL
4

55
5540010
Retaining Ring, 32mm dia OD
4

56
5755136
Air Cylinder Spacer, 12mm
4

57
5530005
Hex Bolt, M6 x 1 x 70mm
12

58
5502195
Air Cylinder, 19 dia x 25mm Stroke
4

59
5530756
Hex Bolt, M6 x 1.0 x 25mm
4

60
5600760
Safety Weldment
4

61
5545005
Flat Washer, M6 x 12mm
4

62
5505625
Female Rod End, M6 X 33mm
4

63
5505030
E-Clip, 10mm dia SS
4

64
5575420
Safety Roller Sheave
4

65
5600044
Light Duty Slack Safety Weldment
4

66
5746008
Safety Pin
4

67
5540275
E-Ring, 25mm dia OD
16

68
5540065
Slack Safety Spring, 13mm dia x 3-1/2"
4

69
5535230
Nut, 1/4-28 JN
4

70
5550087
Elbow Fitting -04 COMP x -02 NPT
4

71
5535357
Nut, M6 x 1.0 NL
16

72
5755137
Air Cylinder Spacer, 25mm
4

73
5600160
Crossbeam Sheave Pin
4

74
5700031
Mounting Bracket
1

75
5530043
Socket Head Cap Screw M3 x 0.5 x 30
2

76
5590175
Push Button Air Valve
1

77
5550486
Nipple Fitting -02 NPT x -04 F NPT
1

78
5545024
Flat Washer, M3 X 9mm
2

79
5535020
Nut, M3 x 0.5 NL
2

80
5715003
Vibration Dampener
1

81
5216139
Flex Tube Kit, Up To 6' 6-3/4"
1

82
5700033
Flex Tube Angle
1

83
5700029
Flex Tube Bracket Plate
1

84
5570022
Hydraulic Hose Assembly, 133" x 6.4
1

85
5550395
Tee Fitting -04 x -04 x -04 (Comp)
3

86
5550106
Elbow Fitting -04JIC x 3/8” NPT
1

All names, numbers, symbols and descriptions are used for reference purposes only. It is not implied that any part listed is the product of these manufacturers. SVI does not represent and is not associated in any way with any other companies.
Related documents

All names, numbers, symbols and descriptions are used for reference purposes only. It is not implied that any part or product listed is the actual product of these manufacturers. SVI does not represent and is not associated in any way with any other companies.

Have any questions?

We’ll get right back to you — Contact us now.
Contact us

Quick Reference

Easy Access to Products, Resources, and More